N

ews center

新闻中心

多线螺纹的数控加工原理与方法

发布时间:2024-12-14 发布者:本站 浏览次数:1153
螺纹有单线和多线之分,沿一条螺旋线形成的螺纹称为单线螺纹,沿两条或两条以上螺旋线形成的螺纹称为双线或多线螺纹。在普通车床加工多线螺纹时,常采用轴向分线法和圆周分线法。

轴向分线法是指当第一条螺旋线加工完毕后,丝杠螺母保持接通,将刀架纵向前移或后移一个螺距后加工第二条螺旋线、第三条螺旋线……这种方法需要精确控制车刀沿轴向移动的距离,以达到分线目的。具体控制方法主要有:(1)小滑板刻度分线法,这种方法虽然比较简便,但分线精度不高。因为受小滑板丝杠间隙的影响以及当螺距并非刻度对应移动量的整倍数时所存在的主观估算误差,所以难免会产生分线误差。(2)百分表、量块分线法,虽然分线精度高一些,但其准备工作繁琐,加工效率低,也容易产生分线误差。

640.png
圆周分线法是根据螺旋线在圆周上等距分布的特点,即当车好一条螺旋线后,脱开工件与丝杠之间的传动链,使主轴旋转一个角度α(α=3600/线数),然后再联接工件与丝杠之间的传动链,进行下一条螺旋线的车削。具体的加工方法主要有:(1)利用三爪、四爪卡盘分线法,这种方法分线简便、快捷,但分线精度较低且分线范围较窄。(2)利用交换齿轮分线法,这种方法分线精度较高,但操作麻烦,且只有当车床交换齿轮的齿数为螺纹线数的整倍数时才行。(3)利用多孔拨盘分线法,虽然分线精度稍高一些,但需增加多孔拨盘,且准备工作多,加工效率低,加工成本高[1]
从以上可知,在普通车床上加工多线螺纹,其加工过程比较繁琐,而且主轴转速又受到螺纹导程的限制,其切削速度无法得到提高,加工效率低;加之螺纹在分线过程中容易出现误差,加工精度较低,这会影响螺纹的工作性能,降低其使用寿命。

随着科学技术的不断进步,在制造业信息化飞速发展的今天,应用数控机床加工多线螺纹可以解决普通机床加工带来的诸多问题。数控车床加工多线螺纹与普通车床加工原理基本相同,其加工方法通常有通过改变螺纹切削起始角度和通过改变螺纹轴向切削起点等两种。在FANUC系统中,多线螺纹编程功能指令有G32、G92、G76等三条。其中G32为单行程螺纹切削指令,编程任务量大,程序较复杂;指令G92可以实现简单螺纹切削循环,使程序段大为简化,但要求工件坯料预先经过粗加工;而指令G76为螺纹切削复合循环指令,它克服了指令G92的缺点,可以将工件从坯料到成品螺纹一次性加工完成,且程序简捷,可节省编程与加工时间。2 通过改变螺纹切削初始角加工多线螺纹
2.1  方法原理
改变螺纹切削初始角加工多线螺纹是根据螺纹的线数沿圆周方向进行分度,每加工完一线螺纹后,主轴旋转一定角度,而起刀点轴向位置不变,接着进行下一线螺纹的加工。
2.2  应用G32指令加工多线螺纹
2.2.1  指令格式
G32X(U)__Z(W)__F__Q__;


式中:
X、Z——绝对尺寸编程时螺纹的终点坐标;
U、W—— 增量尺寸编程时螺纹的终点坐标;
F——螺纹导程(若为单线螺纹,则为螺纹的螺距);
Q——螺纹起始角,该值为不带小数点的非模态值,即增量为0.0010;
如起始角为1800,则表示为Q180000(单线螺纹可以不用指定,此时该值为零);
起始角Q的范围为0~360000之间,如果指定了大于360000的值,则按360000(3600)计算。
2.2.2  应用举例
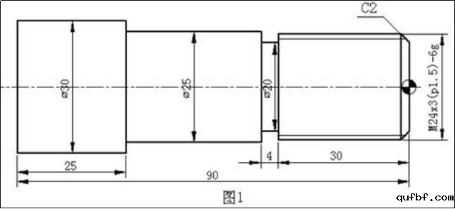
例1,用G32指令编制如图1所示零件上的螺纹加工程序。
640 (1).png
工艺分析:
该零件上有双线螺纹M24X3(P1.5)—6g,螺距为1.5mm导程为3mm。编程原点设在工件右端面中心。
切削参数确定:
查车削手册,确定切深量(半径值)为0.974mm,进刀次数4次,每刀背吃刀量(直径值)分别为0.8mm、0.6mm、0.4mm、0.16mm。
S1(升速进刀段长度)=4mm,S2(减速退刀段长度)=2mm。
设第1线螺纹的起始角为00,则第2线螺纹的起始角为3600/2=1800
参考程序如下:
……;
G00X30.0Z4.0;
X23.2;
G32Z-32.0F3.0Q0;     /第1线螺纹第1刀
G00X30.0Z4.0;
X22.6;
G32Z-32.0F3.0Q0;  /第1线螺纹第2刀
……;
G00 X30.0Z4.0;
X22.04;
G32Z-32.0F3.0Q0;    /第1线螺纹第4刀
G00X30.0Z4.0;
X23.2;
G32Z-32.0F3.0Q180000;/第2线螺纹第1刀
G00X30.0Z4.0;
X22.6;
G32Z-32.0F3.0Q180000;/第2线螺纹第2刀
……;
G00X30.0Z4.0;
X22.04;
G32Z-32.0F3.0Q180000;/第2线螺纹第4刀
G00X30.0;
X100.0Z100.0;
M05;
M30;
2.3  应用G92指令加工多线螺纹
2.3.1  指令格式
G92X(U)__Z(W)__F__Q__;
式中各参数含义与1.2.1相同
2.3.2  应用举例
例2,用G92指令编制如图2[2]所示零件上的螺纹加工程序。
640 (2).png
工艺分析:
该零件上有多线螺纹M30X3(P1.5)—6G,螺距为1.5mm,导程为3mm。编程原点设在工件左端面中心。
切削参数确定(略)
参考程序如下:
……;
G92X29.2Z18.5F3.0;  /双线螺纹切削循环1,背吃刀量0.8mm
X29.2Q180000;
X28.6F3.0;          /双线螺纹切削循环2,背吃刀量0.6mm
X28.6Q180000;
X28.2F3.0;          /双线螺纹切削循环3,背吃刀量0.4mm
X28.2Q180000;
X28.04F3.0;         /双线螺纹切削循环4,背吃刀量0.16mm
X28.04Q180000;
M05;
M30;


  • 电话:

    028 - 87805463
  • 传真:

    4008266163-60799
  • 邮箱:

    594522037@qq.com
  • 地址:

    成都市郫都区现代工业港北片区龚家碾路 169号盛世春天5号楼
Baidu
map